買いたい
買いたい TOP
販売物件一覧
売りたい
注文住宅
注文住宅 TOP
施工実績・事例
リフォーム
会社概要
CONTACT
HOME
買いたい
販売物件一覧
売りたい
注文住宅
リフォーム
施工事例・実績
会社概要
電話からお問い合せ
WEBからお問い合せ
大阪市中央区上本町西3丁目2-2
BRAVI上本町1F
営業時間
| 9:30-19:30
定休日
| 火曜日・水曜日
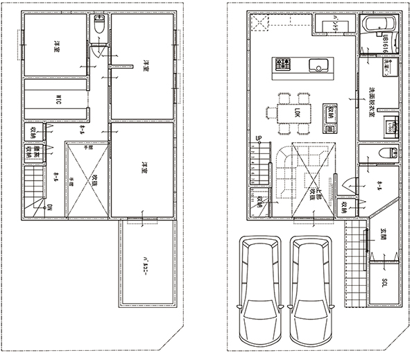
洗練されたこだわりある家
堺市西区浜寺諏訪森町
注文住宅
FLOOR PLAN
一覧に戻る